Price £500,000 - Available


  • A stunning four double bedroom detached family home, located on this popular development
  • Beautifully presented and ready to move into and enjoy.
  • Driveway parking for two cars, leading to integral garage
  • Enclosed rear garden enjoying a decked terrace, opening onto lawns
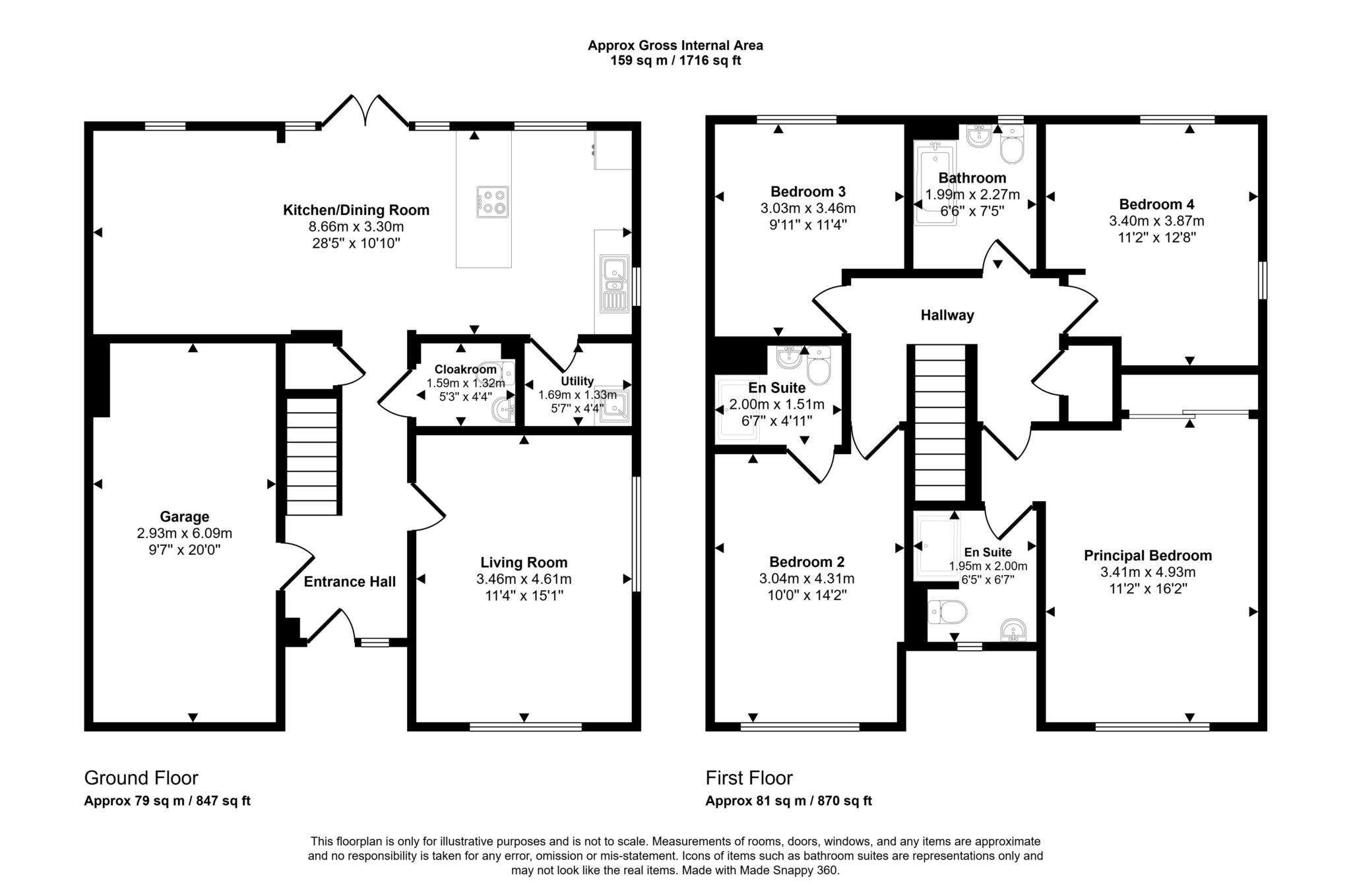
  • Central entrance hall, cloakroom and living room, with double aspect windows
  • Stunning kitchen/dining room running across the rear of the property. Separate utility room
  • Principal bedroom with mirrored fitted wardrobes, en suite shower room and enjoying elevated views
  • Guest bedroom, also enjoying extended views, benefits from en suite shower room
  • Two further double bedrooms and family bathroom complete the property
  • A home that must be viewed to be fully appreciated

Welcome to Number 3, Hawser Road, a stunning four double bedroom detached family home, located on this ever-popular development. Beautifully presented and ready to move into and enjoy the home enjoys a wealth of accommodation across the two floors and further benefits from driveway parking, an integral garage, enclosed rear garden and wonderful, elevated views to the front and it is because of the above, that this property comes with such a high recommendation to view.

Constructed by Messrs Bellway Homes in 2018, the property enjoys a central entrance hall which provides access to most of the ground floor rooms, which includes a cloakroom, living room, kitchen/dining room and the integrated garage.

The living room enjoys plenty of natural light due to enjoying double aspect windows whilst the stunning kitchen/dining room runs across the back of the home and is a wonderful space. The kitchen enjoys a wealth of fitted units which sits alongside a host of integrated appliances. From the kitchen, a door leads through to the separate utility room. The dining area comfortably houses a 10-seater table and chairs and French doors to the rear elevation allow access to the garden.

The garage at the property has also been converted into a games room/cinema room, providing an additional reception room to the property.

To the upper level are the four double bedrooms and three-piece family bathroom. The principal bedroom is located to the front of the property and enjoys mirrored fitted wardrobes, elevated views across Gloucestershire countryside and finally a three-piece, en suite shower room.

The guest bedroom, also located to the front of the property, and so also enjoying open views also benefits from a three-piece en suite shower room. The remaining two bedrooms are located to the rear of the home.

Externally, there is a driveway allowing off road parking for two vehicles whilst the integral garage benefits from light and power. To the rear, the garden is fully enclosed and features a large, decked terrace which opens onto lawns.

Location

The mediaeval town of Tewkesbury offers an array of national and independent shops, a range of bars, restaurants, and coffee shops, as well as two supermarkets, and, of course, is home to the Tewkesbury Mediaeval Festival, which happens once a year in July. The town is also located just off the M5 and is perfectly situated for those looking to travel to the larger towns and cities of Birmingham, Bristol, Cheltenham, and Worcester.



Directions
To locate the property, please enter the following postcode into your sat nav system: GL20 7FA. Upon entering the road, the property is the second house on the left

Council Tax
Tewkesbury Borough Council, Band E

Notice
Please note we have not tested any apparatus, fixtures, fittings, or services. Interested parties must undertake their own investigation into the working order of these items. All measurements are approximate and photographs provided for guidance only.


/// gladiators.tenses.baseballs is the what3words address for the best entrance. what3words has given every 3 metre square in the world a unique combination of 3 random words.

Floor Plan
EER Chart

The Energy-Efficiency Rating is a measure of a home's overall efficiency. The higher the rating, the more energy-efficient the home is, and the lower the fuel bills are likely to be.

Utility Supply Type
Electric Mains Supply
Gas Mains Supply
Water Mains Supply
Sewerage Mains Supply
Broadband FTTP
Telephone Landline

Other Items Description
Heating Gas Central Heating
Garden/Outside Space Yes
Parking Yes
Garage Yes

Broadband Coverage Highest Available Download Speed Highest Available Upload Speed
Standard 13 Mbps 1 Mbps
Superfast 80 Mbps 20 Mbps
Ultrafast 10000 Mbps 10000 Mbps

Mobile Coverage Indoor Voice Indoor Data Outdoor Voice Outdoor Data
EE Likely Likely Enhanced Enhanced
Three Likely Likely Enhanced Enhanced
O2 Likely Likely Enhanced Enhanced
Vodafone Likely Likely Enhanced Enhanced

Broadband and Mobile coverage information supplied by Ofcom.


marker icon