Price £1,100,000 - Available


  • A wonderful four bedroom detached family home that dates back to the 1800's
  • Beautifully presented, this is very much a home that is ready to move into and enjoy
  • Sat within formal, mature gardens, the property also enjoys an attached paddock approaching 2 acres
  • The property further benefits from driveway parking for multiple vehicles and an attached garage
  • Internally, the property enjoys a wealth of accommodation across the three floors
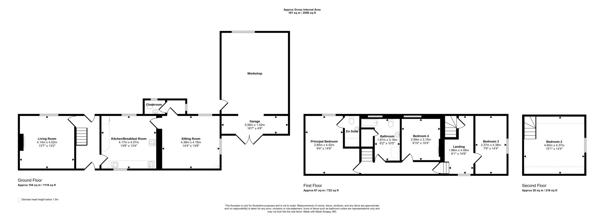
  • On the ground floor is a welcoming entrance hall, two reception rooms and kitchen/breakfast room
  • Kitchen/breakfast room enjoys a wealth of units as well as an oil fired Rayburn
  • Principal bedroom with en suite shower room
  • Two further double bedrooms and family bathroom on the 1st floor. One bedroom to the upper floor
  • Internal Viewings Recommended

Welcome to Pennells Farmhouse, a wonderful four double bedroom family home that dates back to the 1800's. Beautifully presented and located within this highly sought after village, the property sits within mature gardens whilst also benefiting from an attached paddock that is approaching two acres, so is ideal for those with an equestrian pursuit, or for those that want to graze livestock. Furthermore, the property benefits from a wealth of accommodation across the three floors and is further complimented by a driveway parking and an attached garage/workshop and it is because of the above, that this property comes with such a high recommendation to view.

Internally the property enjoys a central entrance hall which allows access to the living room and stunning kitchen/breakfast room. The living room enjoys a wonderful outlook over the garden whilst providing a focal point to the room is the log burning stove which is inset to the chimney breast.

The kitchen/breakfast room is located to the centre of the home and enjoys a wealth of fitted units which sit alongside a host of integrated appliances. Central to the room is the freestanding oil-fired Rayburn which is a lovely feature of the home. The kitchen, like the living room enjoys a super outlook onto the garden and furthermore, at the head of the room a timber door leads through to the properties second reception room, this being the sitting room.

The siting room has a glazed door leading out to the rear garden whilst providing a focal point, is a freestanding log burning stove. Finally, a timber door leads through to a rear hallway which in turn provides access to the cloakroom.

Upstairs, the accommodation is arranged over two floors with the first floor enjoying three double bedrooms and the family bathroom. On this floor is the principal bedroom which features an en suite shower room.

On the upper level is the final double bedroom which due to its position within the home, enjoys super, elevated views.

Externally, the property benefits from an attached garage/workshop whilst also enjoying off road parking for multiple vehicles. The rear garden is a delighted and features a large, paved terrace, ideal for alfresco dining, a sunken pond, large lawns, established flower beds and a range of mature trees. At the head of the garden access is gained to the adjoining paddock, this being a flat piece of land which is enclosed by post and wire fencing and enjoys stunning, far-reaching views.

Location

The village of Sandhurst is situated in the heart of the Severn Vale, just north of the Cathedral city of Gloucester, west of the fashionable Spa town of Cheltenham and within a short drive of the Medieval market town of Tewkesbury as well as the wider motorway network.

The village itself has a church and a cricket club whilst the neighbouring village of Norton has two public houses (one being a leisurely summer walk) and a primary school.

There are excellent independent schools nearby to include The Cheltenham Ladies' College, Cheltenham College and Dean Close in Cheltenham, Malvern College and The King's School, Gloucester. Grammar schools include Sir Thomas Rich's and The High School, Denmark Road in Gloucester and Pates Grammar School in Cheltenham.

For those who like to be entertained, within proximity one can find Theatres in Cheltenham, Malvern and Tewkesbury which also in Cheltenham are a range of cultural festivals to include, Jazz, Literature, Food and Science. Furthermore, there is a Sailing club and marina at Tewkesbury and Premiership rugby at Gloucester.
For those that like to shop, there is the Gloucester Quays retail outlet park in Gloucester whilst an excellent and varied range of high street and boutique and retail park shopping can be found in Cheltenham

The village also offers excellent access to Worcester and Bristol via the M5, the A40 to Oxford and A417 to Swindon whilst direct trains to London Paddington, Birmingham New Street and Bristol Parkway are available from Gloucester or Cheltenham Spa. International airports within a 60 80 minute drive include Birmingham, Cardiff and Bristol



Directions
To locate the property, please enter the following postcode into your sat nav system: GL2 9NR. Upon arrival, the property can be identified by our For Sale sign

Council Tax
Tewkesbury Borough Council, Band C

Notice
Please note we have not tested any apparatus, fixtures, fittings, or services. Interested parties must undertake their own investigation into the working order of these items. All measurements are approximate and photographs provided for guidance only.


/// thing.presides.honest is the what3words address for the best entrance. what3words has given every 3 metre square in the world a unique combination of 3 random words.

Floor Plan
Utility Supply Type
Electric Mains Supply
Gas None
Water Mains Supply
Sewerage Mains Supply
Broadband Unknown
Telephone Landline

Other Items Description
Heating Oil Central Heating
Garden/Outside Space Yes
Parking Yes
Garage Yes

Broadband Coverage Highest Available Download Speed Highest Available Upload Speed
Standard 21 Mbps 1 Mbps
Superfast Not Available Not Available
Ultrafast 1000 Mbps 1000 Mbps

Mobile Coverage Indoor Voice Indoor Data Outdoor Voice Outdoor Data
EE No Signal No Signal Enhanced Enhanced
Three Likely Likely Enhanced Enhanced
O2 Enhanced Likely Enhanced Enhanced
Vodafone Likely Likely Enhanced Enhanced

Broadband and Mobile coverage information supplied by Ofcom.


marker icon