Price £995,000 - Available


  • A three bedroom, Grade II listed property, located in this highly sought after village
  • The property further benefits from a one bedroom, detached self contained annex/holiday cottage
  • Furthermore, the home enjoys expansive gardens, garage and a detached studio/home office
  • Full of charm and character that one would expect from a property of this era
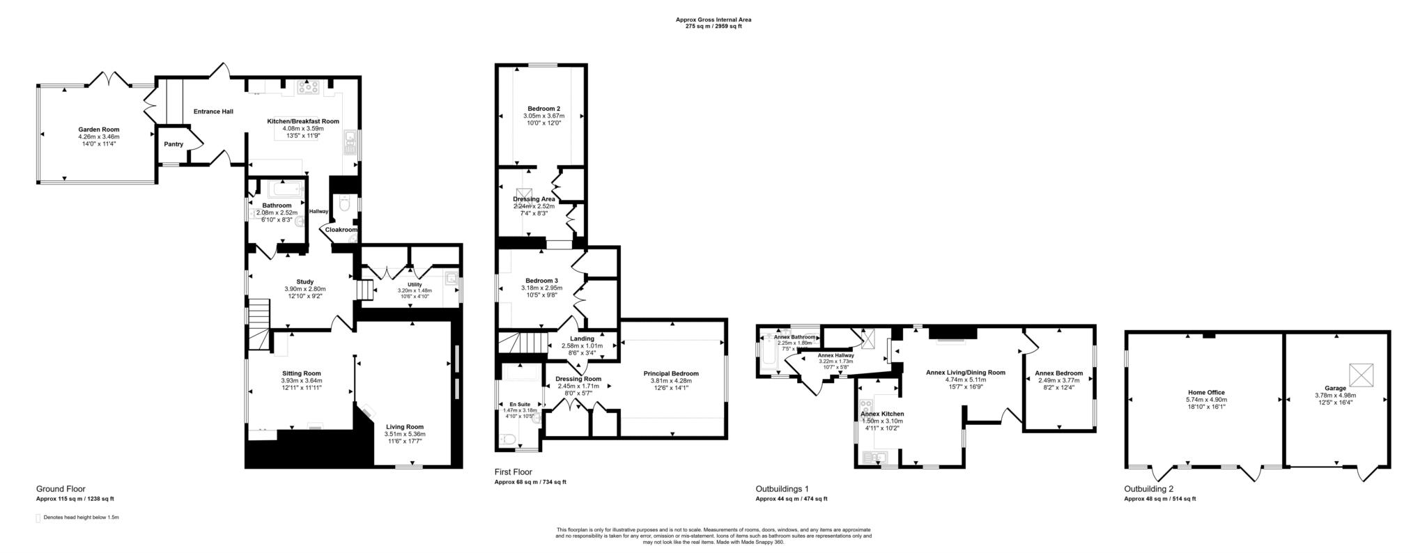
  • Wonderful entrance hall, living room, sitting room, study and garden room
  • Further ground floor rooms include the kitchen/breakfast room, bathroom and cloakroom
  • Principal bedroom with separate dressing area and en suite shower room
  • Two further bedrooms and landing complete the main home
  • Annex/holiday cottage with bathroom, kitchen, bedroom and living/dining room
  • A property that must be viewed to fully appreciate all that is on offer

Welcome to The Old Thatch, a wonderful three-bedroom, Grade II listed family home, located in this highly desirable village that sits on the Gloucestershire/Worcestershire borders. Beautifully presented and full of the charm and character one would expect from a property of this period, the property further benefits from a self-contained, one bedroom annex, which at present is being utilised as a holiday home, yet could quite easily become an Assured Short Hold Tenancy or ancillary accommodation to the main property. In addition to the annex, the property features a detached studio/home office, single garage and beautifully mature, wrap around gardens and it is because of everything described above, that this home comes with such a high recommendation to view.

Internally the main home enjoys a central and welcoming entrance hall which in turn leads to a multitude of rooms, whilst also providing access to the stunning garden. The Old Thatch enjoys a plethora of rooms to the ground floor to include two formal reception rooms, these being the living room and sitting room, a study, the kitchen/breakfast room, utility, cloakroom, bathroom and finally the garden room.

The two formal reception rooms sit aside each other with both rooms enjoying open fireplaces with the sitting rooms open fire inset to a large inglenook. The kitchen/breakfast room enjoys an abundance of fitted units which sit alongside a host of integrated appliances to include a range cooker.

Upstairs, there are three bedrooms with the principal bedroom enjoying a full height ceiling, showing the exposed timber work. The room also benefits from a separate dressing area with fitted wardrobes and a delightful, three-piece, en suite shower room.

Annex

The annex, which is completely detached from the main home is a super, character cottage, full of charm just like the main home. Internally the property features a central hallway that leads to the three-piece family bathroom and the spacious living/dining room.

The living/dining room enjoys a double height ceiling, showing off the stunning exposed timbers to the roof space, whilst providing a focal point to the room is an open fire inset to the chimney breast.

Off the living room is the kitchen and the double bedroom. The kitchen enjoys a good level of fitted units, sitting alongside a host of integrated appliances whilst the double bedroom enjoys plenty of natural light from the two large windows.

Externally

Externally the property is accessed via a gravelled driveway which leads to a large parking area where comfortably one will be able to park 6+ vehicles. The gardens wrap around the property with the annex having its own paved terrace and the main home enjoying large lawned gardens which within is a fine selection of mature trees and shrubs, well stocked flower beds and several seating areas. Within the garden is also a large home office/studio and a garage.

Location

Bredon is a highly desirable village to live in, providing a home for people of all ages. The appeal of the village is its wealth of local amenities within walking distance, a shop, a post office, a doctor's surgery, a village hall, a church, village primary school (OFSTED outstanding' rating), a preschool and two public houses. For those interested in activity and other pursuits, there are a number of local clubs and societies as well as sports clubs offering bowls, football, rugby, cricket, tennis, playing fields, sailing, the river, and the local marina.

The village is named after Bredon Hill, which boasts spectacular views and pathways for walking, running, cycling, and horseback riding.



Directions
To locate the property, please enter the following postcode into your sat nav system: GL20 7EG. Upon arrival, the property can be identified by our For Sale sign

Council Tax
Wychavon District Council, Band G

Notice
Please note we have not tested any apparatus, fixtures, fittings, or services. Interested parties must undertake their own investigation into the working order of these items. All measurements are approximate and photographs provided for guidance only.


/// tinsel.walled.superhero is the what3words address for the best entrance. what3words has given every 3 metre square in the world a unique combination of 3 random words.

Floor Plan
Utility Supply Type
Electric Mains Supply
Gas Mains Supply
Water Mains Supply
Sewerage Mains Supply
Broadband Unknown
Telephone Landline

Other Items Description
Heating Gas Central Heating
Garden/Outside Space Yes
Parking Yes
Garage Yes

Broadband Coverage Highest Available Download Speed Highest Available Upload Speed
Standard 25 Mbps 1 Mbps
Superfast Not Available Not Available
Ultrafast Not Available Not Available

Mobile Coverage Indoor Voice Indoor Data Outdoor Voice Outdoor Data
EE Likely Likely Enhanced Enhanced
Three Likely Likely Enhanced Enhanced
O2 Enhanced Likely Enhanced Enhanced
Vodafone Likely Likely Enhanced Enhanced

Broadband and Mobile coverage information supplied by Ofcom.


marker icon