Price £475,000 - Available


  • A wonderful three bedroom detached, extended family home
  • Located in this highly sought after village, enjoying sensational open views to the rear
  • A really charming home that has a wonderful feel to the property
  • Detached garage with light and power, driveway parking
  • Mature, enclosed garden enjoying lawns, a paved terrace and a well
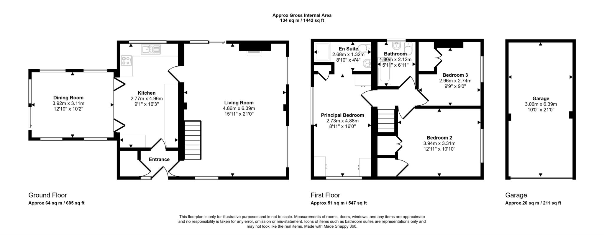
  • Entrance hall, spacious living room with gas fire inset to the chimney breast
  • Fitted kitchen, enjoying a wealth of units, with French doors leading to the dining area
  • Principal bedroom with elevated rear views and en suite shower room
  • Two further bedrooms, one double, one single room and family bathroom
  • Internal Viewings Recommended

Welcome to Fernleigh, a wonderful, three-bedroom detached cottage located in this highly sought after village. Having been extended, the property enjoys a wealth of character that one would expect from a property from this period and as such, the home has a lovely feel. Add in that the property enjoys driveway parking, a detached garage, mature gardens and a sensational, open view to the rear elevation across Gloucestershire countryside, you begin to understand why this property comes with such a high recommendation to view.

Internally the property features a central entrance that leads through to the fitted kitchen and the spacious living room. The living room is located to the front elevation and enjoys plenty of natural light from the double aspect windows whilst French doors leads to a side terrace. Furthermore, and providing a focal point to the room is a gas fire which is inset to the chimney breast.

The kitchen enjoys a wealth of fitted units which sit alongside a host of integrated appliances. French doors to the head of the room lead through to the dining area, which is an extension added by the current vendors. This room is a lovely size and will comfortably house a six eight seater table and chairs and enjoys views over the garden and adjoining paddocks.

Upstairs are three bedrooms and the family bathroom. The principal bedroom enjoys elevated views across the open countryside and further benefits from an en suite shower room. Of the remaining bedrooms, the guest bedroom is a double room whilst bedroom three is a large single room.

Externally the property enjoys off road parking as well as a detached garage that benefits from light and power, plus an electrically operated roller door. The garden encompasses the property and enjoys large lawned areas, two paved terraces, a well and well stocked flower beds.

Location

Little Beckford is situated on the lower slopes of Bredon Hill, an area surrounded by open countryside and bordering the Overbury Estate land. Little Beckford is situated approximately 7 miles from Evesham, 10 miles from Cheltenham and less than 5 miles from the M5 at Ashchurch.

The neighbouring village of Beckford benefits from a church, village stores, tennis courts, nature reserve, village hall, public house, and activities such as a WI, Toddlers Club, Tai Chi and Gardening Club. Evesham offers a wide range of local amenities and a direct line service to London Paddington and Birmingham. There are several good farm shops locally and many walking and riding opportunities in the area.



Directions
To locate the property, please enter the following postcode into your sat nav system: GL20 7AL. Turning into the lane, proceed towards the end and the property can be located on your left.

Council Tax
Wychavon District Council, Band E

Notice
Please note we have not tested any apparatus, fixtures, fittings, or services. Interested parties must undertake their own investigation into the working order of these items. All measurements are approximate and photographs provided for guidance only.


/// blotches.civil.ages is the what3words address for the best entrance. what3words has given every 3 metre square in the world a unique combination of 3 random words.

Floor Plan
EER Chart

The Energy-Efficiency Rating is a measure of a home's overall efficiency. The higher the rating, the more energy-efficient the home is, and the lower the fuel bills are likely to be.

Utility Supply Type
Electric Mains Supply
Gas None
Water Mains Supply
Sewerage Mains Supply
Broadband Unknown
Telephone Landline

Other Items Description
Heating Oil Central Heating
Garden/Outside Space Yes
Parking Yes
Garage Yes

Broadband Coverage Highest Available Download Speed Highest Available Upload Speed
Standard 2 Mbps 1 Mbps
Superfast Not Available Not Available
Ultrafast Not Available Not Available

Mobile Coverage Indoor Voice Indoor Data Outdoor Voice Outdoor Data
EE Likely Likely Enhanced Enhanced
Three Likely Likely Enhanced Enhanced
O2 Enhanced Enhanced Enhanced Enhanced
Vodafone Enhanced Enhanced Enhanced Enhanced

Broadband and Mobile coverage information supplied by Ofcom.


marker icon