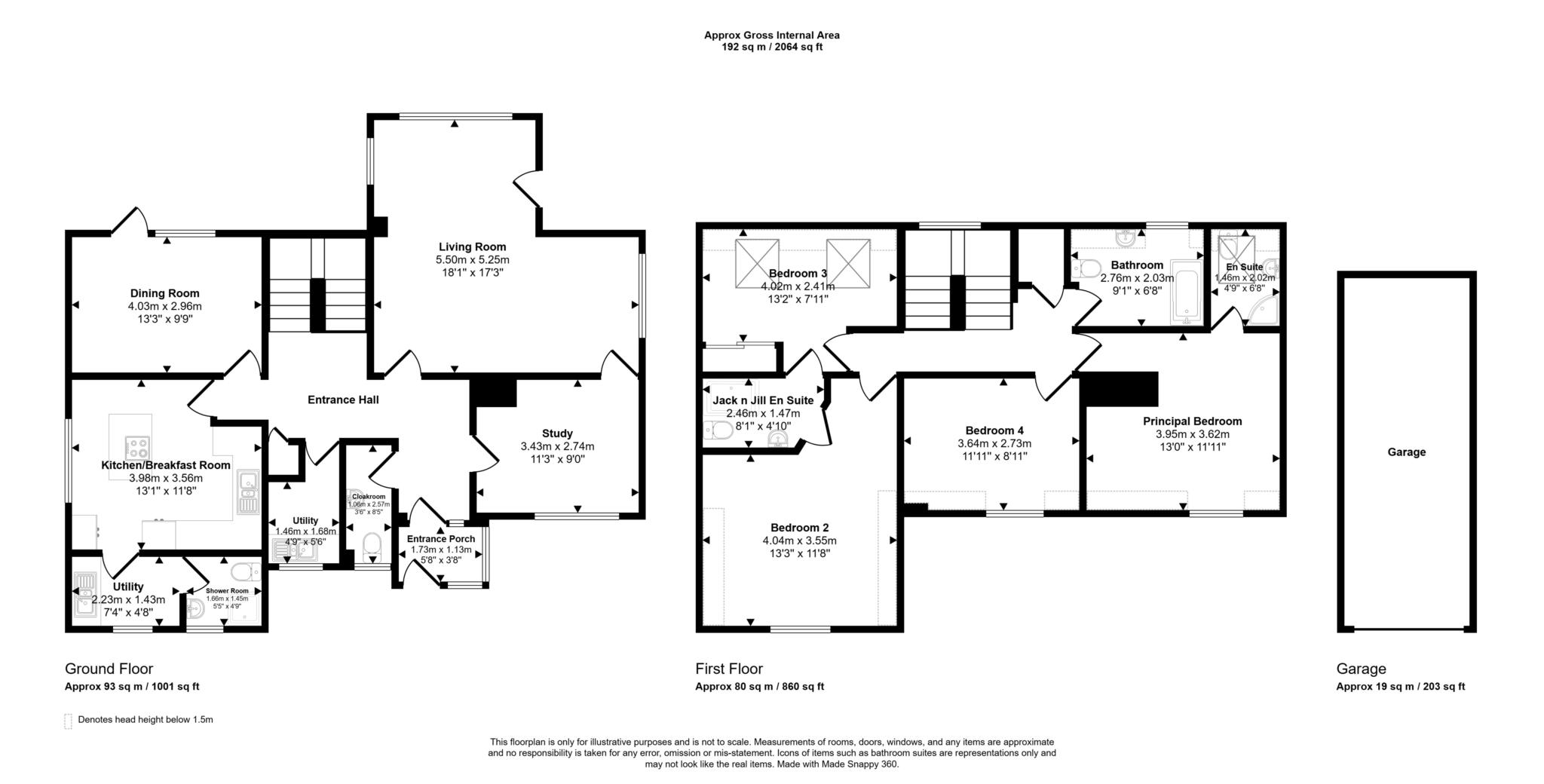
- A wonderful four bedroom detached family home, located in this sought after village
- Having been extended, the property enjoys a wealth of accommodation across the two floors
- Access via electric gates, the property enjoys off road parking for multiple vehicles and a garage
- The gardens wrap around the home, and enjoy lawns, paved terrace and a high degree of privacy
- Internally the property enjoys a central entrance hall, cloakroom, study and two utility rooms
- Further rooms to the ground floor include a living room, dining room, and shower room
- The final room to complete the ground floor is the modern kitchen/breakfast room
- Principal bedroom with en suite shower room. Bedrooms two and three have a Jack n Jill en suite
- Bedroom four and the family bathroom complete the accommodation
- Internal Viewings Recommended
Welcome to Ashley Cottage, a wonderful four-bedroom detached family home, located in this highly sought after village. Having been extended, the home enjoys a wealth of accommodation across the two floors and is further complimented by wrap around gardens, enjoying a high degree of privacy and it is because of the above that this property comes with such a high recommendation to view
Accessed by way of an electric gate, the driveway allows off road parking for multiple vehicles and leads to the detached single garage. Internally the property is accessed via the entrance porch which leads through to the spacious and central entrance hall.
On the ground floor, the property benefits from two formal reception rooms, a separate study, two utility rooms, a modern kitchen/breakfast room, cloakroom and finally a shower room. The living room is a lovely space and offers access to the rear garden whilst a central fireplace provides a focal point to the room. Like the living room, the dining room, which has space to house a six eight seater table and chairs also allows access to the rear garden, which is lawned and has a terraced area to the head of the garden, perfect for a morning coffee.
The kitchen/breakfast room is modern and enjoys a wealth of fitted units, which sit alongside a host of integrated appliances. The kitchen further benefits from a central island, worktop lighting, a tiled floor and to the head of the room, a door leads through to the first of the two utility rooms and in turn, this room leads through to the ground floor shower room.
To the first floor are four lovely sized bedrooms and the family bathroom. The principal bedroom benefits from a three-piece, en suite shower room whilst bedrooms three and four, share a Jack n Jill shower room.
Externally, the main element of the garden is to the front of the property, which is completely enclosed by fencing and enjoys a high degree. This section of the garden is predominantly laid to lawn and within is a lovely selection of plants, trees and shrubs. To the rear is a smaller lawned garden which also features a paved terrace. There is an additional side garden which houses a garden shed and has a further seating area.
Location
The hamlet of Kinsham neighbours the larger villages of Kemerton and Bredon with the larger village of Bredon offering a thriving community and offering amenities such as a village shop and post office, an OFSTED 'outstanding' rated primary school, doctors' surgery, village hall and two public houses. The village is also home to football, rugby and bowls clubs. The nearest town is the Medieval town of Tewkesbury which offers supermarkets, restaurants, coffee shops and a leisure centre whilst for the commuter, there is a train station at Ashchurch and Tewkesbury sits just off Junction 9 of the M5 motorway.
Directions
To locate the property, please enter the following postcode into your sat nav system: GL20 8HP. If coming from Bredon and entering the village, the property is located on your left. If coming from the A46, then the property will be located on your right, towards the head of the village
Council Tax
Wychavon District Council, Band E
Notice
Please note we have not tested any apparatus, fixtures, fittings, or services. Interested parties must undertake their own investigation into the working order of these items. All measurements are approximate and photographs provided for guidance only.
/// ladder.starting.increased is the what3words address for the best entrance. what3words has given every 3 metre square in the world a unique combination of 3 random words.
| Utility |
Supply Type |
| Electric |
Mains Supply |
| Gas |
None |
| Water |
Mains Supply |
| Sewerage |
Mains Supply |
| Broadband |
FTTP |
| Telephone |
Unknown |
| Other Items |
Description |
| Heating |
Heat Pump |
| Garden/Outside Space |
Yes |
| Parking |
Yes |
| Garage |
Yes |
| Broadband Coverage |
Highest Available Download Speed |
Highest Available Upload Speed |
| Standard |
15 Mbps |
1 Mbps |
| Superfast |
30 Mbps |
3 Mbps |
| Ultrafast |
1800 Mbps |
220 Mbps |
| Mobile Coverage |
Indoor Voice |
Indoor Data |
Outdoor Voice |
Outdoor Data |
| EE |
Likely |
Likely |
Enhanced |
Enhanced |
| Three |
Likely |
Likely |
Enhanced |
Enhanced |
| O2 |
Enhanced |
Likely |
Enhanced |
Enhanced |
| Vodafone |
Likely |
Likely |
Enhanced |
Enhanced |
Broadband and Mobile coverage information supplied by Ofcom.