Price £860,000 - Available


  • A stunning, five bedroom detached, period family home, offering a wealth of period charm
  • Located in this highly desirable hamlet, beautifully presented and ready to move into
  • To the rear of the property is a mature and highly private rear garden
  • To the front, the property enjoys driveway parking for 3 cars, plus a detached garage
  • Internally the home enjoys well proportioned accommodation across the three floors
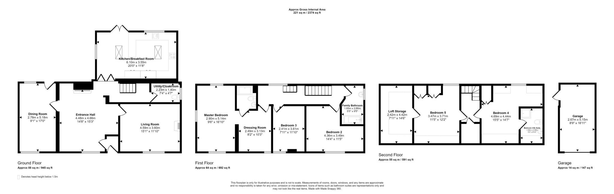
  • Ground floor comprises of a spacious entrance hall, living room and dining room
  • Ground floor completed by a fabulous kitchen/dining room which is an extension of the original home
  • 1st floor features master bedroom with dressing room and en suite, two further bedrooms and bathroom
  • Upper level enjoys two double rooms, one with an en suite shower room
  • A property that must be viewed to be fully appreciated

Welcome to Upper Farm House, a wonderful five-bedroom detached family home, beautifully presented and ready to move into and enjoy. The home, which offers accommodation over three floors, enjoys a wealth of internal space and is balanced beautifully by a large and mature rear garden, which furthermore enjoys a high degree of privacy. Add in that the property benefits from driveway parking, a detached garage, and is in this super hamlet, you begin to understand why this home comes with such a high recommendation to view.

Upper Farm House is located in the hamlet of Aston On Carrant, which sits on the edge of the larger villages of Bredon, Kemerton, and Westmancote, with the main village, Bredon, benefiting from a wealth of local amenities, which include a village infant/primary school (OFSTED outstanding' rating), a pre-school, a shop and post office, a doctor's surgery, a village hall, a church, and two public houses.

For those interested in activity and other pursuits, there are several local clubs and societies, as well as sports clubs offering bowls, football, rugby, cricket, and tennis, playing fields, shooting clubs, sailing, the river, and the local marina.

Returning to the property, the ground floor enjoys a spacious and welcoming central entrance hall, which in turn gives access to all rooms, to include two receptions, the kitchen/dining room, and finally the cloak/utility room.

The entrance hall and living room both benefit from log-burning stoves inset into the chimney breasts, while the kitchen/breakfast room is an extension of the original home and features a wealth of units plus a host of integrated appliances. French doors give access to the property's impressive garden, while Velux windows on the roof space afford the room plenty of natural light.

On the first floor is the master bedroom, which benefits from a separate dressing room and a three-piece en suite shower, plus two further double bedrooms, although one is currently being used as an office. Finally, completing the floor is a modern three-piece family bathroom.

On the upper level are two further bedrooms, one of which benefits from a three-piece en suite shower room. In regards to the bedroom without the en suite, the room offers a door that gives access to a large loft storage area, and should one wish, there is plenty of room to create an en suite for the room should the need arise.

Externally, the home to the front enjoys driveway parking for three cars, and in turn, the driveway gives access to the detached garage, which benefits from light and power, and a pedestrian door to the rear garden.

The rear garden is a delight and features a large, paved terrace, covered seating area, extensive lawns, a summer house, and well-stocked, maturing flower beds that are full of colour and ensure that this is a garden you want to sit in and enjoy.



Directions
To locate the property, please enter the following postcode into your sat nav system: GL20 8HL. Upon entering the hamlet, the property is towards the end of the lane, located on your left

Council Tax
Tewkesbury Borough Council, Band G

Notice
Please note we have not tested any apparatus, fixtures, fittings, or services. Interested parties must undertake their own investigation into the working order of these items. All measurements are approximate and photographs provided for guidance only.


/// plausible.thighs.gradually is the what3words address for the best entrance. what3words has given every 3 metre square in the world a unique combination of 3 random words.

Floor Plan
EER Chart

The Energy-Efficiency Rating is a measure of a home's overall efficiency. The higher the rating, the more energy-efficient the home is, and the lower the fuel bills are likely to be.

Utility Supply Type
Electric Mains Supply
Gas None
Water Mains Supply
Sewerage Mains Supply
Broadband None
Telephone None

Other Items Description
Heating Oil Central Heating
Garden/Outside Space Yes
Parking Yes
Garage Yes

Broadband Coverage Highest Available Download Speed Highest Available Upload Speed
Standard 5 Mbps 1 Mbps
Superfast Not Available Not Available
Ultrafast Not Available Not Available

Mobile Coverage Indoor Voice Indoor Data Outdoor Voice Outdoor Data
EE Enhanced Enhanced Enhanced Enhanced
Three Enhanced Enhanced Enhanced Enhanced
O2 Enhanced Likely Enhanced Enhanced
Vodafone Likely Likely Enhanced Enhanced

Broadband and Mobile coverage information supplied by Ofcom.


marker icon